○ 특징 - 공기 자냉식, 옥내용
○ 용도 - 전원을 승압 또는 강압하여 사용하고자 할때 복권형, 단권형 있음
 

용량  (KVA)

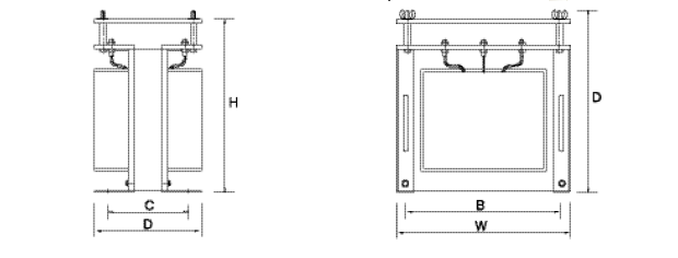
형  식

H

W

D

B

C

Φ

H(아크릴포함)

50VA

75VA

100VA

150VA

200VA

300VA

500VA

750VA

1KVA

1.5KVA

2KVA

2.5KVA

3KVA

5KVA

7.5KVA

10KVA

15KVA

20KVA

25KVA

30KVA

40KVA

50KVA

 

 

 

 

 

 

 

 

SST-600TRD1

SST-600TRD1.5

SST-600TRD2

SST-600TRD2.5

SST-600TRD3

SST-600TRD5

SST-600TRD7.5

SST-600TRD10

SST-600TRD15

SST-600TRD20

SST-600TRD25

SST-600TRD30

SST-600TRD40

SST-600TRD50

100

100

110

115

120

130

170

170

180

180

200

220

220

300

330

350

400

470

500

500

650

680

80

90

98

110

110

120

135

158

158

185

185

220

220

310

320

330

350

370

400

420

420

500

105

105

110

125

125

125

150

170

160

170

184

170

225

200

220

250

250

280

330

350

350

350

65

73

79

93

93

102

120

127

135

152

158

183

183

200

220

220

230

220

220

220

240

250

64

68

63

68

79

85

85

102

102

105

114

115

125

140

140

160

180

185

195

195

200

230

5 x 9

5 x 10

5 x 10

5 x 10

5 x 10

5 x 10

8 x 10

8 x 10

8 x 12

8 x 12

8 x 12

8 x 12

8 x 12

10

10

10

10

12

12

12

12

12

120

120

130

135

140

150

190

190

200

200

250

250

250

360

380

400

450

550

600

600

730

770

 

300VA 미만 H종 DIMENSION은 1단계 윘치수임
NOTE : H.W.D.는 기종에 따라 ±10% 이내임
           공명칫수 허용오차 ±1.5m/m임.
           T.R 주문시 아크릴커버는 별도 사양임

            ※특수 T.R은 별도 사양에 의거 제작, 3KVA 이하 Φ는 O장공임 A×B.